リノベーション&リフォームの施工事例

DIYでもっとお気に入り!自然素材と開放感のプライベート・ヨガサロン。

  • 神奈川県川崎市 A様邸
  • 工事種別:戸建(木造在来)2階改装工事(設備交換、床増設、勾配天井、内装工事など)
  • 施工面積:約43㎡
  • 約570万円
  • 都道府県:神奈川県 市区町村:川崎市

タグ:,,



【Before】





【Before】


 


【Before】


 


【Before】


 



 

【Before】







ヨガ講師のA様は、コロナ渦でジムでの外部講師のお仕事が一時激減。以前より時折開いていた自宅でのヨガ教室も本格的に始めたいと、ご相談に来られました。

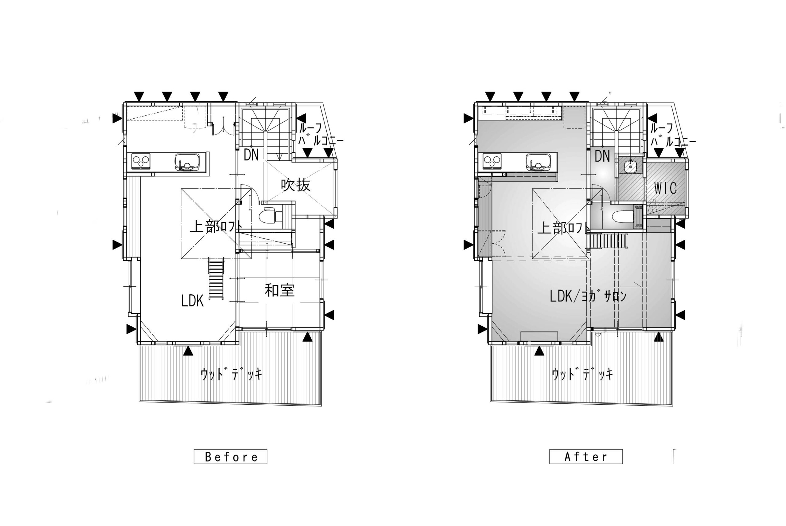
今回一番のこだわりは、リビング隣の和室天井を解体し、元々吹抜けだったリビングの勾配天井と繋げて開放的なLDK兼ヨガサロンに生まれ変わらせること。リビングと和室の間の構造上大切な大梁は残りましたが、梁補強や火打ちと共に木部が強調され、自然の中でヨガを体験しているような気持ちのいい空間になりました。飼っているインコのマリンちゃんも気持ちよさそうに飛び回り、よく梁にとまって休憩しているそうです。

リビングと腰壁で繋がっていたロフトは、入口の向きを変え、リビング側を閉じることで収納した物が見えなくなり、リビングからの景色が気にならなくなりました。

階段上の吹抜部分には新たに床をつくり、WIC(当初予定)と造作手洗器を増設。「WICのつもりが素敵になり過ぎて(笑)、主に生徒さんの着替えスペースとして使っています」とA様。元和室の収納を無くした代わりにつくったWICは、収納機能はほとんど果たしていませんが、不思議と断捨離した状態をキープできていると言います。完成から半年以上経った撮影時もとてもきれいな状態をキープされていてほとんどスタイリングの必要は無し。それでも「リフォームしたらもっと物を減らしたくなりました!」と意気込んでいました。

今回できる限り自然素材を使ったのも、生徒さんたちになるべく気持ちよくヨガ時間を過ごしてもらいたいというA様のこだわり。床材には、表面がさらっとして素足に気持ちいいオイル塗装の無垢オークを選び、壁と天井には調湿性能に優れた珪藻土を全面に塗りました。生徒さんたちには「部屋に入ってくると空気が違う!」ととても好評だそう。他にも、アクアブルーやヘリンボーンのクラフトタイル、塗装体験に通って選んだグレーブルーやセージグリーンの塗料、オーク集成材のカウンターや造作収納、真鍮の照明器具や金物など、A様のこだわりが随所に詰まっています。

自然素材は、ちょっとコツを知れば自分たちで施工やメンテナンスができるところも魅力のひとつ。今回A様は、トイレの珪藻土塗り、塗装壁、木巾木や集成材のサンディングやオイル塗装などを家族4人でDIY施工しました。「味わいのある素材たちを見るたびに、楽しい思い出と施工の苦労が同時に蘇りますが、家に対する愛着もより強くなりました」と語ってくださいました。

CONTACT

カタログのお取り寄せや各種ご相談(オンライン相談/ショールーム見学等)は
全て無料で受け付けております。
家づくりのこと何でも、お気軽にご相談ください!

042-705-8099受付時間:9:00~18:00

2つのショールームで
お待ちしております!

ショールーム見学

スマホやPCから手軽に
家づくりの相談が可能!

オンライン相談

ビルドアートの家づくりをぎゅっとまとめた
カタログセットをお届け!

ショールーム見学
リフォーム&リノベーションのご相談やカタログ請求はこちらリフォーム&リノベーションのご相談やカタログ請求はこちら